- Standort: Gilsbach
- Baujahr: 2011-2012
- Bauherr: privat
- Wohnfläche: 139,74
- Nutzfläche: 37,63
- Leistungsphasen: 1-9
Erdwärmepumpe mit Fußbodenheizung
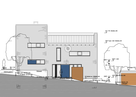
Wohnhaus in Gilsbach, 2011-2012
Der Neubau des freistehenden Wohnhauses liegt direkt an einem Naturschutzgebiet. Das Haus besteht aus zwei schlanken, höhenversetzten Baukörpern, die konsequent auf die Hanglage reagieren. Der darüber hinaus offen gehaltene Grundriss bietet viel natürliches Licht und reizvolle Ausblicke in die Natur.
