- Standort: Bornheim Walberberg
- Baujahr: 2010-2011
- Bauherr: privat
- Wohnfläche: 211,99
- Nutzfläche: 71,19
- Leistungsphasen: 1-9
Erdwärmepumpe mit Fußbodenheizung,
Lüftungsanlage mit
Wärmetauschern
Lüftungsanlage mit
Wärmetauschern
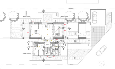
Wohnhaus in Bornheim Walberberg
Das freistehende Wohnhaus fügt sich mit seiner schlichten und modernen Architektur selbstbewusst in die heterogene Umgebung ein. Das Haus ist in zwei Baukörper gegliedert – gleichzeitig in die Wohnbereiche sowie die funktionalen Räume. Durch die gezielte Zuordnung und Transparenz entstehen starke Beziehungen zwischen Innen und Außen. Flexibel kann das Haus bei geänderten Bedürfnissen mit wenigen Eingriffen in zwei gleichwertige Wohnungen umgewandelt werden.




